Trilocale in vendita

Monza, Via Giacomo Tosi - Libertà
€ 175.000
Prezzo aggiornato
3 locali 3 locali
100 Mq 100 Mq
2 bagni 2 bagni

Trilocale in vendita

Monza, Via Giacomo Tosi - Libertà

Descrizione annuncio

Monza, zona Libertà.

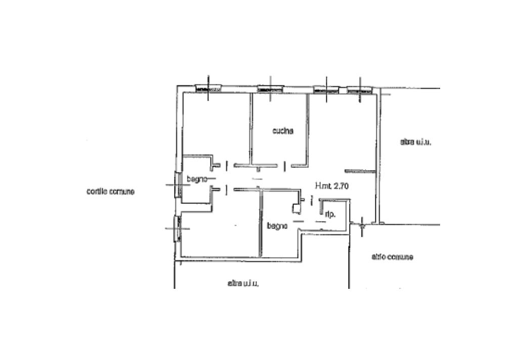
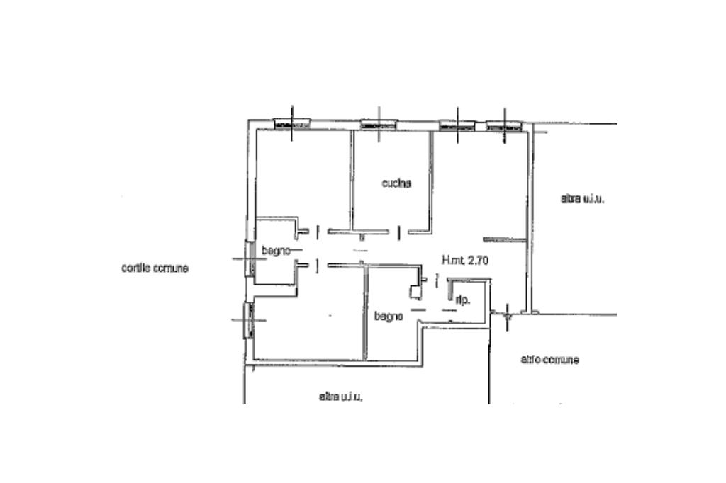
In zona ben servita con bar, supermercati, farmacie, scuole, mezzi di trasporto tra cui la linea bus che portano direttamente al centro città, trilocale in contesto residenziale con giardino condominiale e servizio di portineria. Si propone appartamento ristrutturato nel 2020 di circa 100 mq con cucina abitabile, doppi servizi, ripostiglio e vano cantina. L'abitazione posto ad un piano terra è suddiviso in ampio soggiorno, cucina abitabile, disimpegno con rispostiglio e primo bagno con box doccia. La zona notte è composta da due spaziose camere, un secondo bagno di servizio finestrato. L'immobile vanta di buone finiture, pavimenti e rivestimenti in gres porcellanato oltre a controsoffitto con faretti ed impianto stereo e di climatizzazione caldo/freddo canalizzato. Riscaldamento centralizzato con termo valvole e serramenti in alluminio doppio vetro con tapparelle elettriche. Possibilità di box a parte in locazione.

Mostra tutto

Nelle vicinanze

Trasporto pubblico Trasporto pubblico
Villasanta
Villasanta
1,3 Km
Monza
Monza
2,8 Km
Z202 - MONZA, V.le Liberta' dopo Via Tolomeo
Z202 - MONZA, V.le Liberta' dopo Via Tolomeo
70 m
Trasporto pubblico
80 m
Monza Sobborghi
Monza Sobborghi
1,8 Km
Ricariche auto elettriche Ricariche auto elettriche
Eneldrive Esselunga Monza
770 m
Iper Monza
930 m
Concessionario Nissan Renord
1,5 Km
Piazza Europa
1,8 Km
Eurospin Monza Stucchi
1,8 Km
Scuole Scuole
Scuola d'Infanzia Cuore Immacolato di Maria
100 m
Scuola Primaria Gianni Rodari
120 m
Istituto Tecnico Statale Commerciale e per Geometri Achille Mapelli
370 m
Liceo Statale Carlo Porta
460 m
Scuola Primaria Alessandro Anzani
800 m
Farmacia Farmacia
Farmacia Comunale n. 3
540 m
Parafarmacia Gamma Salute
890 m
Iper Farma
980 m
Farmacia Alle Grazie
1,3 Km
Farmacia Comunale n° 6
1,3 Km
Ospedali Ospedali
Policlinico di Monza
990 m
Istituti Clinici Zucchi
2,4 Km
Supermercati Supermercati
Esselunga di Viale Libertà
870 m
Iper
970 m
Iper Express
990 m
IN's Mercato
1,3 Km
Coop
1,5 Km
Negozi Negozi
Gastronomia Arosio
740 m
Mix Market
880 m
Fantasie di Pane
970 m
Bazar Exchange
1,1 Km
B Four
1,1 Km
Bar Bar
ModY's Bar
240 m
Tony e Dany
1,1 Km
Fantasy Dance Line
1,2 Km
Movida Monza
1,2 Km
Bar
1,2 Km
Ristoranti Ristoranti
Ristorante Da Guerino
560 m
Tigelleria La Rustica
810 m
Pizzeria Don Raffaele
820 m
Ristorante Porto di Mare
840 m
Yami Sushi
1,0 Km
Mostra tutto

Caratteristiche

Rif.:
61118822
Piano:
Terra di 5 con ascensore
Totale piani:
5
Camere da letto:
2
Arredamento:
Parziale
Condizionamento:
Autonomo
Mostra tutto
Prezzo Prezzo
€ 175.000
Rata mutuo Rata mutuo
€ 804 / mese
Spese annue Spese annue
€ 3.250
Proponi il tuo prezzoProponi il tuo prezzo

Classe Energetica

D
D
D
D
D
D
D
D
D
EP globale non rinnovabile:
145.16 kW h/m² anno
EP globale rinnovabile:
3.98 kW h/m² anno
EP invernale del fabbricato:
EP estiva del fabbricato:
Anno di costruzione:
1970
Riscaldamento:
Centralizzato
Tipo impianto:
A radiatori
Tipo alimentazione:
Metano

Prezzo ridotto di €1 (3%%)

Ti interessa visionare l'immobile?

Fissa un appuntamento  Fissa un appuntamento

Richiedi informazioni

* Questi campi sono obbligatori

Calcola il tuo mutuo

Semplice e senza impegno
Anticipo

( % )
Mutuo

( % )

pochi semplici passi

inserisci i tuoi dati
Questionario completato
Grazie per aver richiesto un appuntamento senza impegno con un nostro Consulente del Credito e Assicurativo.

Hai inserito correttamente tutti i dati necessari e a breve riceverai una e-mail con un link da convalidare per inviare i tuoi dati.
Affiliato
Logi Srl
Via Lecco, 88 20900 Monza (MB)

Il nostro staff


  • Riccardo Franceschetti
    Collaboratore

  • Chiara Miglio
    Collaboratrice

  • Elisea Rubino
    Coordinatrice

  • Lorenzo Stanganello
    Affiliato

  • Giuseppe Rizzo
    Affiliato
Via Lecco, 88 20900 Monza (MB)
Zona: Monza
Mostra su mappa
Affiliato
Logi Srl
Via Lecco, 88 20900 Monza (MB)

2025 Tecnocasa Franchising S.p.A. - P. IVA 08365160152 - Via Monte Bianco 60/A 20089 Rozzano (MI). Ogni agenzia ha un proprio titolare ed è autonoma. Privacy policy | Policy utilizzo | Cookie policy